Pozemok v projekte: 1.153 m² v exkluzívnej komunite 4 domov, Svederník - Marček pri Žiline, Cena: 217.949€
Exkluzívne

Detail ponuky

Ponuka číslo: ZA015967

Popis

EXKLUZÍVNE! PREČO JE PROJEKT MEDOVÁ LÚKA INÝ?
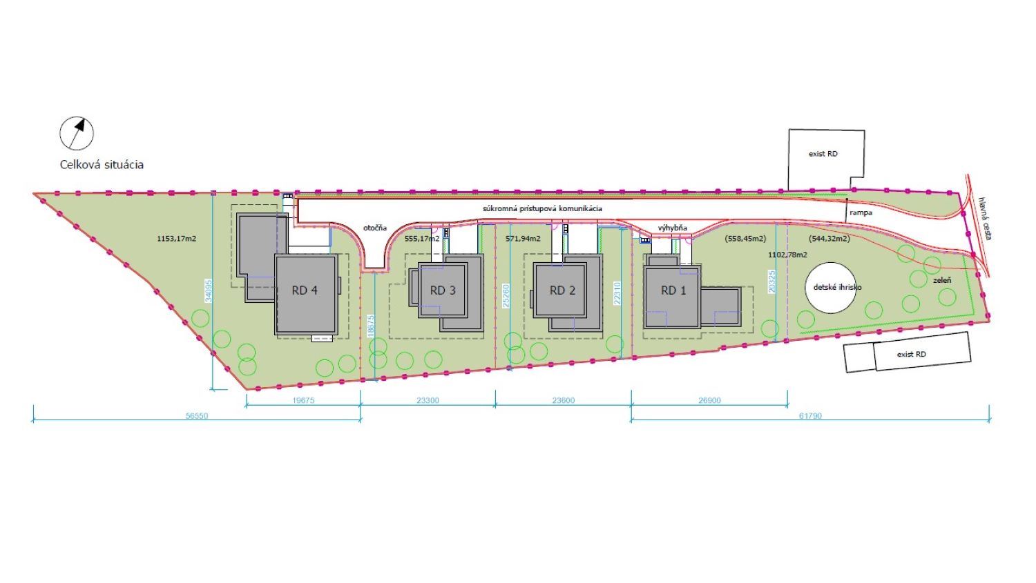
Plánovaná výstavba iba 4 rodinných domov. Vlastná príjazdová cesta. Súkromie, aké často nenájdete.

Váš pozemok: 1.153,17 m² slnečného rovinatého pozemku + 200 m² podiel na prístupovej ceste.
Váš benefit: Môžete si vybrať susedov, viacero pozemkov je ešte k dispozícii. Alebo investovať do celého projektu.
Vaše okolie: Nadštandardné rodinné domy, romantická kaplnka, lúky plné medonosných kvetov.

Územný plán schválený, stavebné povolenie bude k dispozícii. Inžinierske siete (elektrina a voda) vybudované v réžii predávajúceho. Spevnená príjazdová cesta z makadamu bude vo vlastníctve budúcich majiteľov pozemkov.

SVEDERNÍK – MARČEK = ŽILINA BEZ MESTSKÉHO RUCHU
9 minút do Žiliny, 15 minút do jej centra. Bytča 12 minút.
Kompletná občianska vybavenosť: škôlka, predajne, služby, gastro prevádzky, kostol, knižnica, iné.
Pre aktívnych: okolité lúky lákajú včelárov, neďaleké lesy sú rajom hubárov, cyklotrasy na dosah. Rozhľadňa Svederník s výhľadmi na Váh a Hričovskú priehradu.
Pravidelné autobusové spoje. Rýchlostné cesty (Bratislava – Košice – Čadca) do 8 minút.

Celková cena: 227.949 € (217.949 € pozemok + 10.000 € podiel na prístupovej ceste)

Nájdete na stránke realityMGM.sk pod ID ZA015967.
Call centrum tel: 0910 86 11 86.



Cena 217 949 €
Typ nehnuteľnosti Pozemky
Inzertná kategória Predaj
Stav nehnuteľnosti Neuvedené
Celková plocha bytu bez logie 0 m2
Obec Čadca
Časť Marček

PROFIROL

od

  • Retiazkové žaluzie, závesy, záclony a rolety
  • Záruka 4 roky
  • Vrátane montáže

Biela technika

od 955.25€

  • Chladnička, práčka
  • Vstavaná rúra, odsávaČ pár
  • Varná doska, mikrovlnná rúra

Komandor

od 300€

  • Kuchynská linka, vstavané skrine
  • Obývacia izba
  • Zariadenie celého bytu

Architekt LECTUS

Podľa dohody

  • Interiérový dizajn
  • Nábytok na mieru
  • Realizácie na kľúč

Sťahovanie TRIV

od 250€

  • Sťahovanie
  • Balenie
  • Doprava

Keramika SOUKUP

od 500€

  • Kúpeľne, obklady
  • Dlažby, sanita
  • Podlahy, terasy, balkóny

Finvia Group s.r.o.

Služby zdarma

  • Zabezpečíme Vaše bývanie
  • Ochránime Váš majetok
  • Zabezpečíme Váš príjem

Štúdio spánku a pohodlia

Zľava až do 30%

  • Sedačky na mieru
  • Postele a matrace
  • Unikátny dizajn

Podlahy a dvere Eko Interiér

Zľava 8%

  • Laminát, vinil, drevo
  • Interiérove dvere
  • Realizácie na kľúč


Okres Čadca je okres v Žilinskom kraji na Slovensku. Má rozlohu 760,62 km², žije tu 89 952 obyvateľov a priemerná hustota zaľudnenia je 118 obyvateľov na km² (údaje k 31. 12. 2019). Správne sídlo okresu je mesto Čadca.

Okres leží v severnej časti regiónu Kysuce. Na severe hraničí s Poľskom a na západe s Českom. Hlavným tokom je rieka Kysuca. Do okresu Čadca patrí 23 obcí, z toho tri so štatútom mesta (Čadca, Turzovka a Krásno nad Kysucou). Väčšina inštitúcii (úradov) a škôl okresu sídli v Čadci, no niektoré školy otvorili svoje pobočky aj v iných mestách. V obciach Skalité, Čierne, Svrčinovec a Oščadnica sa hovorí aj goralským alebo poľským nárečím.

Zdroj: wikipedia


Žilinský kraj

Demografia

K 21. máju 2011, bolo na území Žilinského kraja 144 948 domov, t.j. 13,5 % z celkového počtu domov v Slovenskej republike (z toho 120 788 obývaných, t.j. 83,3 %). Žilinský kraj bol v počte domov na druhom mieste za Nitrianskym krajom (podiel 16,2 %). Spomedzi okresov kraja najvyšší počet domov sa nachádzal v Žiline 20,3 % a najmenej v Turčianskych Tepliciach 3,3 %. Obývaných domov bolo v okrese Žilina 21,1 % z úhrnu za kraj a v Turčianskych Tepliciach 3,2 %.

Geologická charakteristika

Celé toto hornaté územie spadá z geomorfologického hľadiska do Západných Karpát. Horské masívy v tejto lokalite sa sformovali pomerne nedávno, v paleogéne. Zásluhou pohybov príkrovov sa vyzdvihovali pôvodné morské sedimenty, z ktorých postupne vznikli impozantné údolia. Rieka Váh územie nápadne rozdeľuje na dve časti:

  • severná zahŕňa pohoria: Tatry, Skorušinské vrchy, Oravské Beskydy, Oravská Magura, Oravská vrchovina, Chočské vrchy, Krivánska Fatra, Kysucké Beskydy, Kysucká vrchovina a Javorníky
  • južná zahŕňa pohoria: Nízke Tatry, Veľká Fatra, Lúčanská Fatra a Strážovské vrchy

Dejiny

Po páde Veľkomoravskej ríše v roku 907, ku ktorej územie patrilo, bolo od 12. storočia prakticky až do roku 1918 súčasťou uhorského kráľovstva. V 13. storočí na obranu proti mongolským nájazdom bola vybudovaná sieť hradov (Hričov, Považský, Košecký, Lietavský, Strečniansky). 16. storočie znamenalo pre miestnych obyvateľov chudobu a strach, hlavne pred tureckou okupáciou a živelnými pohromami. Ku koncu 19. storočia tu bola zavedená železnica a v údolí Váhu začal prekvitať priemysel.


Stručná história Slovenska

Prvý štátny útvar Slovanov na území dnešného Slovenska bola Samova ríša (7. storočie), neskôr Nitrianske kniežatstvo (začiatok 9. storočia), ktorého spojením s Moravským kniežatstvom vznikla v roku 833 Veľká Morava. Od polovice 10. do konca 11. storočia sa územie Slovenska postupne začlenilo do Uhorska, ktoré sa v roku 1526 stalo súčasťou Rakúskej monarchie (Habsburskej monarchie), od roku 1867 nazývanej Rakúsko-Uhorsko. Po rozpade Rakúsko-Uhorska v roku 1918 bolo Slovensko súčasťou Česko-Slovenska až do roku 1993 (okrem obdobia samostatnosti počas vojnovej Slovenskej republiky). 1. januára 1993 vznikla rozdelením tohto štátneho útvaru samostatná Slovenská republika.

Slovenská republika je parlamentnou demokraciou, štátnym jazykom je slovenčina. Od 1. mája 2004 je Slovensko členom Európskej únie, od 21. decembra 2007 je členom Schengenského priestoru. Od 1. januára 2009 je 16. členom Európskej menovej únie – eurozóny a oficiálnou menou sa stalo euro, ktoré vystriedalo slovenskú korunu.